Trevor Law Chartered Surveyor and Estate Agent

Incorporating

Incorporating Brian-Wilson.co.uk

Development Opportunity @ Moore Street

Aughnacloy, Tyrone, BT69 6AR

POA

Sale Agreed Terrace

Description

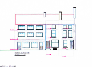
DEVELOPMENT OPPORTUNITY IN AUGHNACLOY TOWN CENTRE

 

TOWN CENTRE DEVELOPMENT SITES WITH STREET FRONTAGE TO MOORE STREET, AUGHNACLOY

 

Trevor Law Properties are delighted to present this exciting development opportunity to the market. An attached group, such as these, of prime town centre sites already ear-marked for redevelopment, rarely come on the market. Their location in the popular border town of Aughnacloy makes this a perfect opportunity to avail of an excellent investment project with interests in both the retail and residential sectors.

 

The property currently houses a thriving Flower shop business, but the properties would be suitable for single or mixed-use development, subject to all relevant planning approvals.

 

These properties can be sold together or as separate lots if preferred.

 

 

 

N.B. – Any photographs displayed or attached to brochures may have been taken with a wide angled lens.  Trevor Law Ltd have not tested any equipment, apparatus, fittings or services and cannot verify that these are in working order.

 

Valuations – Should you be considering the sale of your own property we would be pleased to arrange through our office a Free Valuation and advice on selling without obligation.